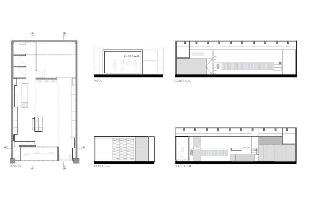
Chocolate Alcorta

Proyecto y dirección. Diseño de interiores y desarrollo de mobiliario a medida. Buenos Aires, Argentina.